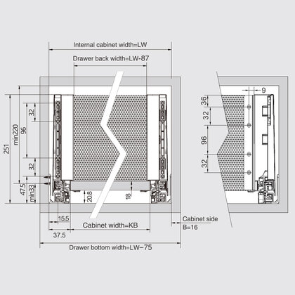
Skrytý, plnovýsuv
Dynamická nosnosť: 40/50 kg
Montáž a vybratie zásuvky bez použitia náradia
Tichý systém zaručuje plynulý chod bez hluku
3D nastavenie:
nastavenie hore a dole ±2 mm
nastavenie doľava a doprava: ±1,2 mm
nastavenie sklonu + 0 mm - 4 mm
Kompatibilné s 18 mm zadnou a spodnou časťou
Creobox Plus PUSH 500, v-238, biely pre 18 mm dno /DTC
Objednávací kód: A03/CBP-P500V238-BL
Kód:
795421
| Tlmenie | Áno |
|---|---|
| Bezuchytové otvaranie PUSH | Áno |
| Dĺžka | 500 |
| Celková výška | 253 |
| Maximálna nosnosť | 40 |
| Typ výsuvu | Skrytý plnovýsuv |
| Výška | 238 |
| Tlmený doťah | Áno |
| Merná jednotka | kpl |
Popis
Dokumenty
Príslušenstvo
Kontaktný formulár
Popis
Príslušenstvo
-
Synchronizačná tyč pre Creobox Plus PUSH 18 mm dno /DTC
A03/CBP-SYNCHRO-TYC